STUDIO APARTMENT
in Krakow

Дизайн інтер'єру квартири в історичному центрі Кракова в сучасному стилі_2022

STUDIO APARTMENT
in Krakow

Дизайн інтер'єру квартири в історичному центрі Кракова в сучасному стилі_2022

Краків

Квартира - студія

35 m²

ЛОКАЦІЯ
ОБ'ЄКТ
ПЛОЩА

Дизайн інтер'єру розроблений для інвестиційного об'єкта краківської компанії. Інвестиція «DOLNYCH MŁYNÓW 10» розташована поруч із площею Rynek Główny в історичному центрі Кракова.

Перед нами стояло завдання створити естетичну та комфортну квартиру для клієнта преміум-сегменту. Дизайн інтер'єру виконано в сучасному стилі з відкритими комфортними просторами, незважаючи на відносно невелику площу приміщення. В дизайні інтер'єру переважають натуральні матеріали і фактури, досить спокійні кольори оздоблювальних матеріалів створюють загальне враження легкості і затишку.

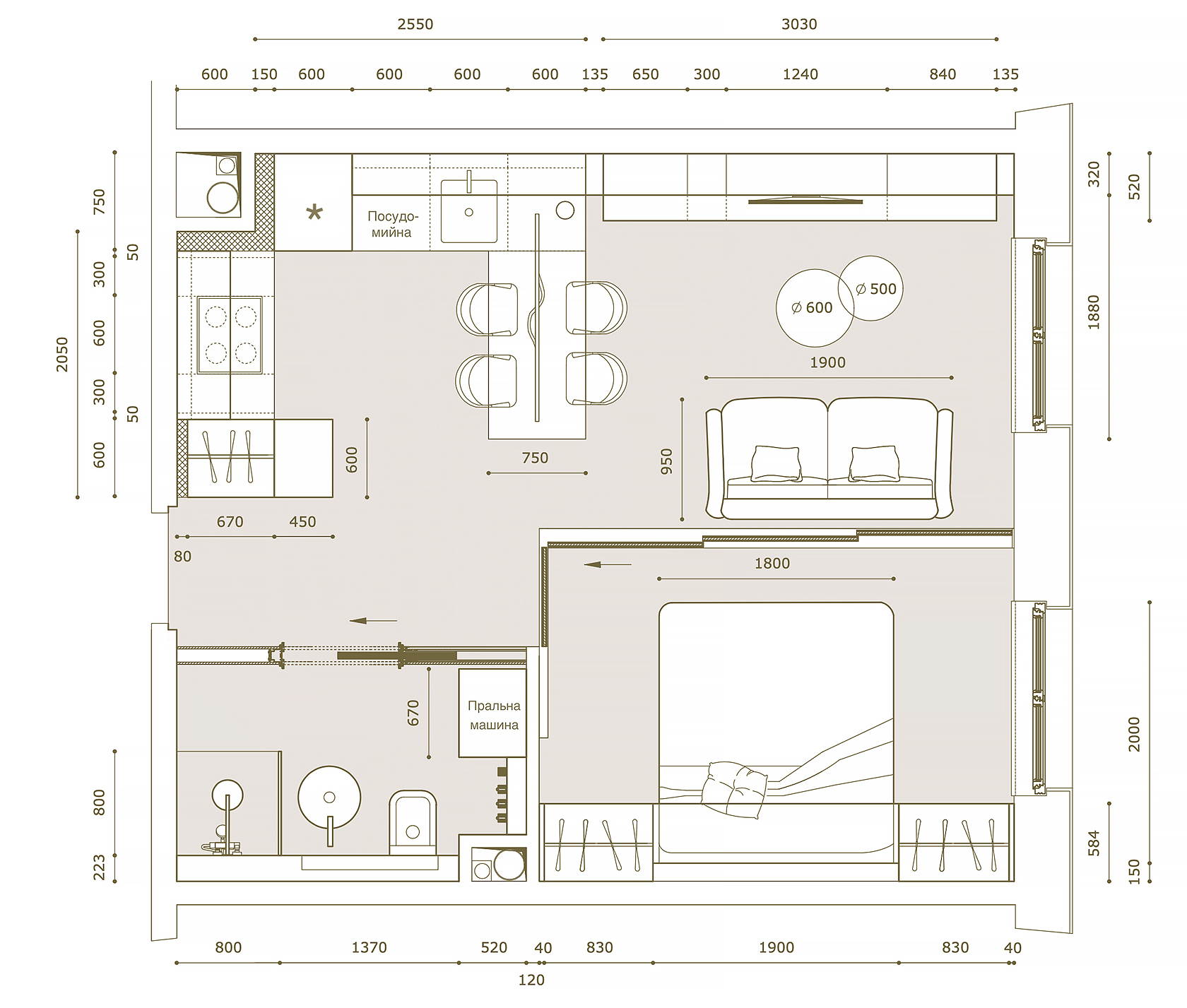
Загальна площа квартири становила 35 квадратних метрів, тому ергономіку довелося ретельно продумати. Щоб звільнити місце в квартирі, ми вирішили змінити початковий план забудови і не будувати стіну між вітальнею і спальнею.

Натомість ми розділили ці два функціонально різні простори системою розсувних скляних дверей. Після відкриття розсувних дверей квартира здається набагато просторішою, а скляні двері навіть у закритому стані не перешкоджають проникненню денного освітлення.
Таке рішення має не тільки естетичну цінність, але й забезпечує кращий психологічний комфорт мешканцям.
У виконавчому проекті ви можете побачити інформацію разом із детальними кресленнями, необхідними для реалізації цього проекту.





Вітальня та кухня об'єднані спільним відкритим простором. Кухонний півострів візуально і функціонально розділяє ці дві зони.

В кухонній зоні ми використовували такі бренди:


В зоні вітальні ми використовували такі бренди:

Кухонні меблі - бренд POLIFORM VARENNA, модель ALEA PRO (Італія)
Барні крісла - бренд POLIFORM, модель - SOPHIE LITE (Італія)


Диван - бренд CASSINA, модель - MARALUNGA 40 (Італія)
Столики кавові - бренд GIULIO MARELLI, модель - WAVE (Італія)
Система розсувних скляних дверей - бренд RIMADESIO, модель VELARIA (Італія)

Вітальня та кухня


Оскільки загальна площа квартири досить невелика, місце для зберігання речей передбачено в закритих шафах, розташованих в спальні. Плитка на замовлення призначена для оздоблення стіни над узголів'ям ліжка. Плитка створює цікаву декоративну фактуру на поверхні стіни. Цей декоративний ефект фактури посилюється підсвічуванням бра.

В зоні спальні ми використали такі бренди:


Шафи - бренд POLIFORM, модель SENZAFINE BANGKOK (Італія)
Ліжко - бренд MISURA EMME, модель Virgin (Італія)
Настінні бра - бренд FLOS, модель Flauta Riga 1 (Italy)



Спальня


Для ванної кімнати ми розробили індивідуальне дзеркало з 3D ефектом і підсвічуванням.
Цікавий декоративно-об'ємний ефект дзеркала досягається завдяки металевій поверхні, розміщеній між двома шарами скла, і підсвічуванню між ними.

Дзеркало складається з двох елементів у формі круга: один елемент - дзеркало, інший - текстурована металева поверхня, які розташовані між двома скляними поверхнями.

У ванній кімнаті ми використовували наступні бренди:


Плитка - бренд 41 ZERO 42, колекція BISCUIT (Італія)
Умивальник - brand ANTONIO LUPI, модель ALBUME 10 Cristalmood, колір Barrique (Італія)
Підлоговий змішувач для умивальника - бренд GESSI, модель 316 FLESSA (Італія)
Душова кабіна без піддону - бренд VISMARAVETRO, Art.- SQUARE P-32-09 NERO (Італія)
Душова система прихованого монтажу - бренд DORNBRACHT, модель, META (Німеччина)
Електричний обігрівач - бренд CEADESIGN, модель Equilibro (Італія)
Унітаз підвісний - бренд BERGES, модель EGO (Німеччина)
Скляні розсувні двері у ванну кімнату - бренд RIMADESIO, модель EVEN (Італія)









Ванна кімната

Краків, Польща
Київ, Україна
Telergram
Messenger
WhatsApp
Viber
PHONE
CONTACT
E-Mail
US

Загальна площа квартири становила 35 квадратних метрів, тому ергономіку довелося ретельно продумати. Щоб звільнити місце в квартирі, ми вирішили змінити початковий план забудови і не будувати стіну між вітальнею і спальнею.

Натомість ми розділили ці два функціонально різні простори системою розсувних скляних дверей. Після відкриття розсувних дверей квартира здається набагато просторішою, а скляні двері навіть у закритому стані не перешкоджають проникненню денного освітлення.
Таке рішення має не тільки естетичну цінність, але й забезпечує кращий психологічний комфорт мешканцям.
У виконавчому проекті ви можете побачити інформацію разом із детальними кресленнями, необхідними для реалізації цього проекту.





Вітальня та кухня об'єднані спільним відкритим простором. Кухонний півострів візуально і функціонально розділяє ці дві зони.

В кухонній зоні ми використовували такі бренди:


В зоні вітальні ми використовували такі бренди:

Кухонні меблі - бренд POLIFORM VARENNA, модель ALEA PRO (Італія)
Барні крісла - бренд POLIFORM, модель - SOPHIE LITE (Італія)


Диван - бренд CASSINA, модель - MARALUNGA 40 (Італія)
Столики кавові - бренд GIULIO MARELLI, модель - WAVE (Італія)
Система розсувних скляних дверей - бренд RIMADESIO, модель VELARIA (Італія)

Вітальня та кухня


Оскільки загальна площа квартири досить невелика, місце для зберігання речей передбачено в закритих шафах, розташованих в спальні. Плитка на замовлення призначена для оздоблення стіни над узголів'ям ліжка. Плитка створює цікаву декоративну фактуру на поверхні стіни. Цей декоративний ефект фактури посилюється підсвічуванням бра.

В зоні спальні ми використали такі бренди:


Шафи - бренд POLIFORM, модель SENZAFINE BANGKOK (Італія)
Ліжко - бренд MISURA EMME, модель Virgin (Італія)
Настінні бра - бренд FLOS, модель Flauta Riga 1 (Italy)



Спальня


Для ванної кімнати ми розробили індивідуальне дзеркало з 3D ефектом і підсвічуванням.
Цікавий декоративно-об'ємний ефект дзеркала досягається завдяки металевій поверхні, розміщеній між двома шарами скла, і підсвічуванню між ними.

Дзеркало складається з двох елементів у формі круга: один елемент - дзеркало, інший - текстурована металева поверхня, які розташовані між двома скляними поверхнями.

У ванній кімнаті ми використовували наступні бренди:


Плитка - бренд 41 ZERO 42, колекція BISCUIT (Італія)
Умивальник - brand ANTONIO LUPI, модель ALBUME 10 Cristalmood, колір Barrique (Італія)
Підлоговий змішувач для умивальника - бренд GESSI, модель 316 FLESSA (Італія)
Душова кабіна без піддону - бренд VISMARAVETRO, Art.- SQUARE P-32-09 NERO (Італія)
Душова система прихованого монтажу - бренд DORNBRACHT, модель, META (Німеччина)
Електричний обігрівач - бренд CEADESIGN, модель Equilibro (Італія)
Унітаз підвісний - бренд BERGES, модель EGO (Німеччина)
Скляні розсувні двері у ванну кімнату - бренд RIMADESIO, модель EVEN (Італія)









Ванна кімната

Краків, Польща
Київ, Україна
Telergram
Messenger
WhatsApp
Viber
PHONE
CONTACT
E-Mail
US
© 2023 All Right Reserved
Made on
Tilda