MIESZKANIE TYPU STUDIO w Krakowie

Projekt wnętrza mieszkania w historycznym centrum Krakowa w nowoczesnym stylu_2022

MIESZKANIE TYPU STUDIO w Krakowie

Projekt wnętrza mieszkania w historycznym centrum Krakowa w nowoczesnym stylu_2022

Krakow

Studio apartment

35 m²

LOCATION
OBJECT
SQUARE

Projekt wnętrz został opracowany dla obiektu inwestycyjnego krakowskiej firmy. Inwestycja "DOLNYCH MŁYNÓW 10" znajduje się obok placu Rynek Główny w historycznym sercu Krakowa.

Staliśmy przed zadaniem stworzenia estetycznych i komfortowych apartamentów dla klienta premium segmentu. Projekt wnętrza został zrealizowany w stylu nowoczesnym z otwartymi, komfortowymi przestrzeniami, pomimo odpowiednio małej powierzchni pomieszczenia. W wystroju wnętrza dominują naturalne materiały i faktury, dość spokojna kolorystyka materiałów wykończeniowych stwarzają ogólne wrażenie lekkości i komfortu.

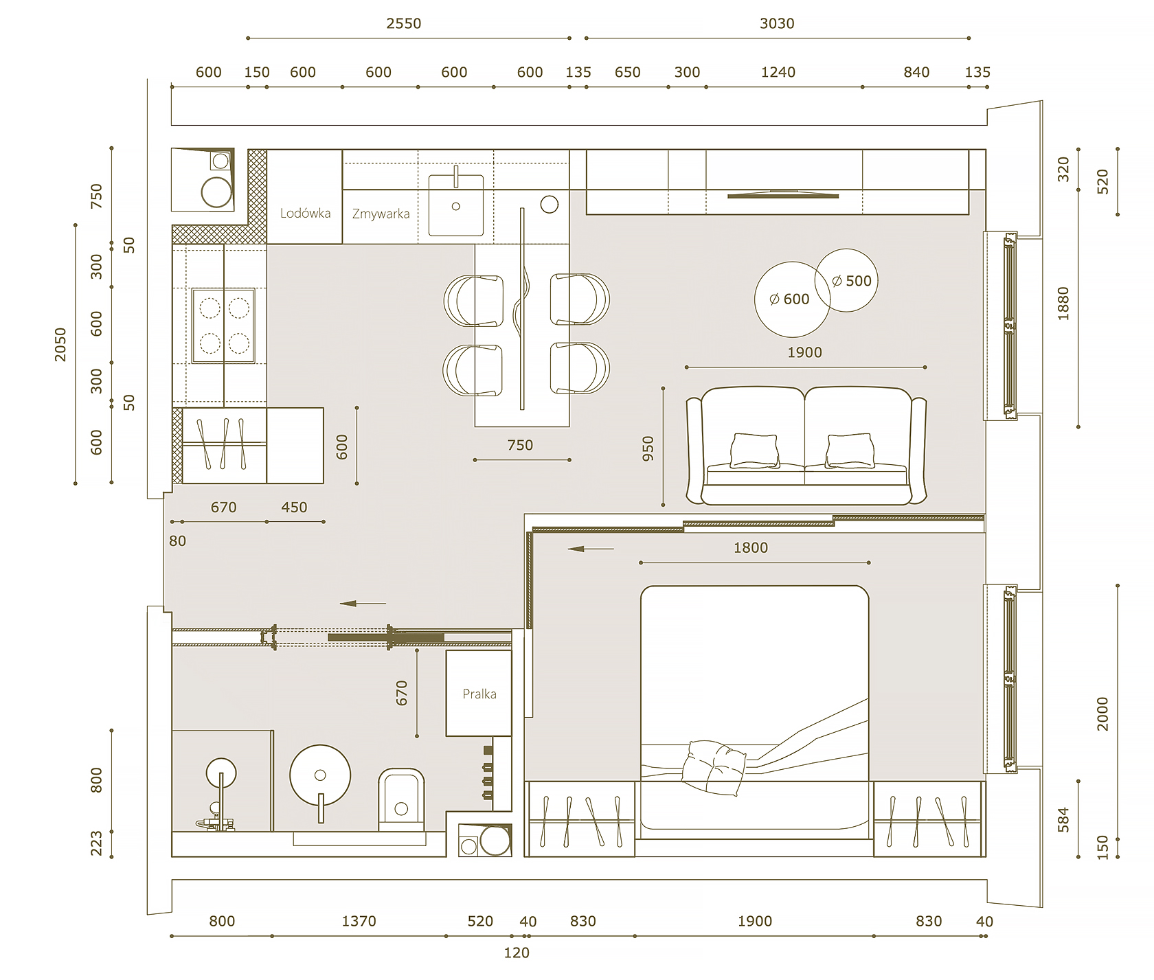
Całkowita powierzchnia mieszkania wynosiła 35 metrów kwadratowych, więc trzeba było dokładnie przemyśleć ergonomię. Aby zwolnić miejsce w mieszkaniu postanowiliśmy zmienić plan zabudowy i nie murować ściany między salonem a sypialnią.

Zamiast tego podzieliliśmy te dwie funkcjonalnie różne przestrzenie za pomocą systemu przesuwnych szklanych drzwi. Po otwarciu drzwi przesuwnych mieszkanie wydaje się znacznie bardziej przestronne, a szklane drzwi nawet po zamknięciu nie zasłaniają naturalnego światła dziennego.
Takie rozwiązanie ma nie tylko walory estetyczne, ale zapewnia również lepszy komfort psychologiczny mieszkańcom.
W projekcie wykonawczym można zobaczyć informacje wraz ze szczegółowymi rysunkami niezbędnymi do realizacji tego projektu.






Salon i kuchnia mają własną otwartą przestrzeń połączoną. Półwysep kuchenny wizualnie i funkcjonalnie oddziela te dwie strefy.

W kuchni wykorzystaliśmy następujące marki:


W salonie wykorzystaliśmy następujące marki:

Meble kuchenne - producent POLIFORM VARENNA model ALEA PRO (Italy)
Krzesła barowe - producent POLIFORM model - SOPHIE LITE (Italy)


Kanapa - producent CASSINA model - MARALUNGA 40 (Italy)
Stoliki kawowe - producent GIULIO MARELLI model - WAVE (Italy)
Szklane drzwi przesuwne - producent RIMADESIO model VELARIA (Italy)

Pokój dzienny i kuchnia


Ponieważ całkowita powierzchnia mieszkania jest dość mała, w szafach znajdujących się w sypialni zaprojektowano miejsce na rzeczy. Płytki na wymiar przeznaczone są do dekoracji ściany nad wezgłowiem łóżka. Płytka ta tworzy ciekawą dekoracyjną fakturę na powierzchni ściany. Efekt ten potęguje oświetlenie kinkietem.

W sypialni wykorzystaliśmy następujące marki:


Szafy - brand POLIFORM model SENZAFINE BANGKOK (Italy)
Łóżko - brand MISURA EMME, model Virgin (Italy)
Klinkety- brand FLOS, model Flauta Riga 1 (Italy)



Sypialnia


Do łazienki zaprojektowaliśmy indywidualnie lustro z efektem 3D i podświetleniem.
Ciekawy dekoracyjny i wolumetryczny efekt w lustrze uzyskuje się dzięki metalowej powierzchni umieszczonej między dwiema warstwami szkła oraz podświetleniu pomiędzy nimi.

Lustro składa się z dwóch części w kształcie koła : jedna część to lustro, druga to teksturowana metalowa powierzchnia pomiędzy dwiema szklanymi powierzchniami.

W łazience zastosowaliśmy następujące marki:


Płytka - brand 41 ZERO 42, kolekcja BISCUIT (Italy)
Umywalka - brand ANTONIO LUPI, model ALBUME 10 Cristalmood, color Barrique (Italy)
Bateria umywalkowa podłogowa - brand GESSI, model 316 FLESSA (Italy)
Kabina prysznicowa bez brodzika - brand VISMARAVETRO Art.- SQUARE P-32-09 NERO (Italy)
System prysznicowy podtynkowy - brand DORNBRACHT, model META (Germany)
Grzejnik elektryczny - brand CEADESIGN, model Equilibro (Italy)
Miska ustępowa - brand BERGES, model EGO (Germany)
Szklane drzwi przesuwneтdo łazienki - brand RIMADESIO, model EVEN (Italy)









Łazienka

Telergram
Messenger
WhatsApp
Viber
PHONE
CONTACT
E-Mail
US

Całkowita powierzchnia mieszkania wynosiła 35 metrów kwadratowych, więc trzeba było dokładnie przemyśleć ergonomię. Aby zwolnić miejsce w mieszkaniu postanowiliśmy zmienić plan zabudowy i nie murować ściany między salonem a sypialnią.

Zamiast tego podzieliliśmy te dwie funkcjonalnie różne przestrzenie za pomocą systemu przesuwnych szklanych drzwi. Po otwarciu drzwi przesuwnych mieszkanie wydaje się znacznie bardziej przestronne, a szklane drzwi nawet po zamknięciu nie zasłaniają naturalnego światła dziennego.
Takie rozwiązanie ma nie tylko walory estetyczne, ale zapewnia również lepszy komfort psychologiczny mieszkańcom.
W projekcie wykonawczym można zobaczyć informacje wraz ze szczegółowymi rysunkami niezbędnymi do realizacji tego projektu.






Salon i kuchnia mają własną otwartą przestrzeń połączoną. Półwysep kuchenny wizualnie i funkcjonalnie oddziela te dwie strefy.

W kuchni wykorzystaliśmy następujące marki:


W salonie wykorzystaliśmy następujące marki:

Meble kuchenne - producent POLIFORM VARENNA model ALEA PRO (Italy)
Krzesła barowe - producent POLIFORM model - SOPHIE LITE (Italy)


Kanapa - producent CASSINA model - MARALUNGA 40 (Italy)
Stoliki kawowe - producent GIULIO MARELLI model - WAVE (Italy)
Szklane drzwi przesuwne - producent RIMADESIO model VELARIA (Italy)

Pokój dzienny i kuchnia


Ponieważ całkowita powierzchnia mieszkania jest dość mała, w szafach znajdujących się w sypialni zaprojektowano miejsce na rzeczy. Płytki na wymiar przeznaczone są do dekoracji ściany nad wezgłowiem łóżka. Płytka ta tworzy ciekawą dekoracyjną fakturę na powierzchni ściany. Efekt ten potęguje oświetlenie kinkietem.

W sypialni wykorzystaliśmy następujące marki:


Szafy - brand POLIFORM model SENZAFINE BANGKOK (Italy)
Łóżko - brand MISURA EMME, model Virgin (Italy)
Klinkety- brand FLOS, model Flauta Riga 1 (Italy)



Sypialnia


Do łazienki zaprojektowaliśmy indywidualnie lustro z efektem 3D i podświetleniem.
Ciekawy dekoracyjny i wolumetryczny efekt w lustrze uzyskuje się dzięki metalowej powierzchni umieszczonej między dwiema warstwami szkła oraz podświetleniu pomiędzy nimi.

Lustro składa się z dwóch części w kształcie koła : jedna część to lustro, druga to teksturowana metalowa powierzchnia pomiędzy dwiema szklanymi powierzchniami.

W łazience zastosowaliśmy następujące marki:


Płytka - brand 41 ZERO 42, kolekcja BISCUIT (Italy)
Umywalka - brand ANTONIO LUPI, model ALBUME 10 Cristalmood, color Barrique (Italy)
Bateria umywalkowa podłogowa - brand GESSI, model 316 FLESSA (Italy)
Kabina prysznicowa bez brodzika - brand VISMARAVETRO Art.- SQUARE P-32-09 NERO (Italy)
System prysznicowy podtynkowy - brand DORNBRACHT, model META (Germany)
Grzejnik elektryczny - brand CEADESIGN, model Equilibro (Italy)
Miska ustępowa - brand BERGES, model EGO (Germany)
Szklane drzwi przesuwneтdo łazienki - brand RIMADESIO, model EVEN (Italy)









Łazienka

Telergram
Messenger
WhatsApp
Viber
PHONE
CONTACT
E-Mail
US
© 2023 All Right Reserved
Made on
Tilda