COMFORTABLE MINIMALIST house_ 2020
Інтер'єр будинку в стилі мінімалізм, с. Лісники _ 2020
COMFORTABLE MINIMALIST house

Інтер'єр будинку в стилі мінімалізм, с. Лісники _ 2020
с. Лесники
Частный дом
230 м²
ЛОКАЦИЯ
ОБЪЕКТ
ПЛОЩАДЬ

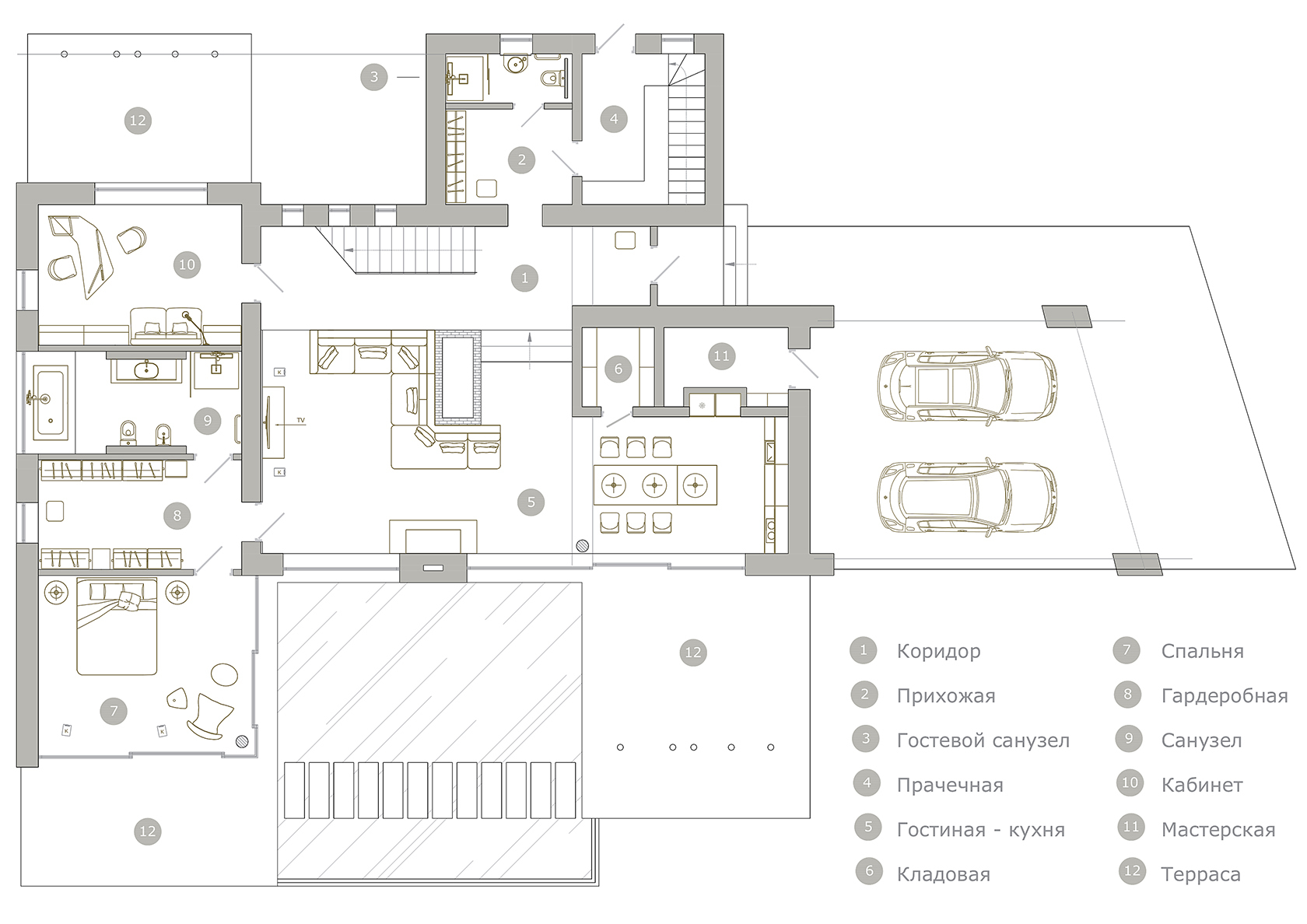
Частный дом расположен недалеко от Киева в с. Лесники.
Из окон дома открываются живописные панорамные виды на холмистые равнины и леса.


Интерьер помещений реализован в минималистическом стиле, который отвечает архитектурной стилистике самого здания. В оформлении интерьера преобладают натуральные материалы и фактуры.
Просторные открытые планировки помещений, светлые тона и достаточно спокойная цветовая палитра отделочных материалов, создают общее впечатление легкости и комфорта, а также не отвлекают внимание от красивых панорамных видов, открывающихся из окон дома.

Стиль минимализм в интерьере характерен сдержанностью и строгостью в оформлении. Главным образом она достигается посредством использования функциональных предметов интерьера, геометричностью форм и сочетанием двух, трех базовых цветов. Крайне важно при оформлении помещения грамотно разделять пространство.
Зона гостиной и кухни располагают своим открытым объединенным пространством. Каминная зона служит своеобразным центральным элементом помещения.

В помещении кухни мы использовали следующие бренды :



В помещении гостиной мы использовали следующие бренды :


Кухонная мебель - фабрика DOIMO CUCINE (Италия)
Стулья - фабрика CATTELAN Italia (Италия)


Тумба для ТВ - фабрика SAN GIACOMO (Италия)
Двери межкомнатные - фабрика BARAUSSE (Италия)



Гостиная и кухня


В помещении спальни можно также любоваться видами из больших панорамных окон, удобно расположившись в кресле. Кофе-столик со столешницей из черного мрамора был спроектирован индивидуально для этого помещения, более детальную информацию касательно авторских предметов интерьера можно найти здесь в разделе

В помещении спальни мы использовали следующие бренды :


Кресло - фабрика BOCONCEPT _ модель Imola (Дания)
Акустическая система - фабрика BANG & OLUFSEN _ коллекция BeoLab 8002 (Дания)
Прикроватные тумбы - фабрика SANGIACOMO (Италия)
Подвесные светильники - фабрика DIESEL by FOSCARINI _ модель Cage (Италия)
Дверь межкомнатная - фабрика BARAUSSE (Италия)


Хозяйская спальня


В помещении кабинета мы использовали контрастное сочетание светлого пола из выбеленного дуба с довольно насыщенным по тону темным корпусом стенки и с ярким цветовым акцентом в виде дивана в обивке из нубука.
Корпусная мебель для этого помещения разрабатывалась индивидуально и технологически сложной особенностью стенки являются срезанные под острым углом торцы полок, что делает их очень тонкими и изящными на вид.
На полках удачно разместились не только книги, но также авторская керамика и сувениры, привезенные из путешествий.
Не менее интересным по форме и сложным в производстве получился письменный стол, выполненный в тонированном шпоне дуба на опоре в виде ноги из металла.
Более детальную информацию касательно этого стола и других авторских предметов интерьера можно увидеть в разделе


В помещении кабинета мы использовали следующие бренды :


Диван - фабрика SABA _ модель Avant - Apres (Италия)
Освещение (настольная и настенная лампы) - фабрика ARTEMIDE _ коллекция Tolomeo (Италия)
Дверь межкомнатная - фабрика BARAUSSE (Италия)




Кабинет
Между помещениями хозяйской спальни и санузла разместилась гардеробная комната. Колорита этому помещению добавляет марокканский ковер ручной работы, который был привезен из этой страны в качестве сувенира. Особенностью уникальных рисунков этих ковров является наличие определенной смысловой нагрузки у каждого отдельного графического узора. Эффектное сочетание выразительных и ярких цветов с самобытным орнаментом делают их незаменимыми в оформлении интерьера.





Гардеробная
Хозяйский санузел достаточно просторный, в нем две акцентные стены, размещенные друг напротив друга в отделке из натурального сланца.
Тумба для умывальника на три секции со столешницей из массива дерева отлично сочетается с натуральной текстурой камня. Ванна расположена непосредственно у окна, что также дает возможность отдыхая любоваться видами.

В хозяйском санузле мы использовали следующие бренды :


Сантехника (ванна, унитаз и биде) - производитель VILLEROY & BOCH (Германия)
Настенный душевой смеситель с двойной системой - бренд GROHE (Германия)
Умывальник, смесители для ванной и умывальника - бренд DEVIT (Италия)
Тумба для умывальника на 3 секции со столешницей из массива дерева - фабрика MODULNOVA (Италия)
Настенные светильники - фабрика FLOS _ коллекция Wall System _ артикул F9492057 (Италия)
Дверь межкомнатная - фабрика BARAUSSE (Италия)




Хозяйский санузел
Гостевой санузел расположен на втором этаже. Тумба под умывальник композиционно удачно заполнила нишу между ванной и стеной, здесь также использовалась достаточно крупная по размерам столешница из массива натурального дерева.

В гостевом санузле мы использовали следующие бренды :
Сантехника (унитаз и биде) - производитель VILLEROY & BOCH (Германия)
Настенный душевой смеситель с двойной системой - бренд GROHE (Германия)
Смесители для ванной и умывальника - бренд DEVIT (Италия)
Тумба для умывальника со столешницей из массива дерева - фабрика MODULNOVA (Италия)
Дверь межкомнатная - фабрика BARAUSSE (Италия)





Гостевой санузел
Краков, Польша
Киев, Украина
Стиль минимализм в интерьере характерен сдержанностью и строгостью в оформлении. Главным образом она достигается посредством использования функциональных предметов интерьера, геометричностью форм и сочетанием двух, трех базовых цветов. Крайне важно при оформлении помещения грамотно разделять пространство.
Зона гостиной и кухни располагают своим открытым объединенным пространством. Каминная зона служит своеобразным центральным элементом помещения.

В помещении кухни мы использовали следующие бренды :



В помещении гостиной мы использовали следующие бренды :


Кухонная мебель - фабрика DOIMO CUCINE (Италия)
Стулья - фабрика CATTELAN Italia (Италия)


Тумба для ТВ - фабрика SAN GIACOMO (Италия)
Двери межкомнатные - фабрика BARAUSSE (Италия)



Гостиная и кухня


В помещении спальни можно также любоваться видами из больших панорамных окон, удобно расположившись в кресле. Кофе-столик со столешницей из черного мрамора был спроектирован индивидуально для этого помещения, более детальную информацию касательно авторских предметов интерьера можно найти здесь в разделе



В помещении спальни мы использовали следующие бренды :


Кресло - фабрика BOCONCEPT _ модель Imola (Дания)
Акустическая система - фабрика BANG & OLUFSEN _ коллекция BeoLab 8002 (Дания)
Прикроватные тумбы - фабрика SANGIACOMO (Италия)
Подвесные светильники - фабрика DIESEL by FOSCARINI _ модель Cage (Италия)
Дверь межкомнатная - фабрика BARAUSSE (Италия)


Хозяйская спальня


В помещении кабинета мы использовали контрастное сочетание светлого пола из выбеленного дуба с довольно насыщенным по тону темным корпусом стенки и с ярким цветовым акцентом в виде дивана в обивке из нубука.
Корпусная мебель для этого помещения разрабатывалась индивидуально и технологически сложной особенностью стенки являются срезанные под острым углом торцы полок, что делает их очень тонкими и изящными на вид.
На полках удачно разместились не только книги, но также авторская керамика и сувениры, привезенные из путешествий.
Не менее интересным по форме и сложным в производстве получился письменный стол, выполненный в тонированном шпоне дуба на опоре в виде ноги из металла.
Более детальную информацию касательно этого стола и других авторских предметов интерьера можно увидеть в разделе



В помещении кабинета мы использовали следующие бренды :


Диван - фабрика SABA _ модель Avant - Apres (Италия)
Освещение (настольная и настенная лампы) - фабрика ARTEMIDE _ коллекция Tolomeo (Италия)
Дверь межкомнатная - фабрика BARAUSSE (Италия)




Кабинет
Между помещениями хозяйской спальни и санузла разместилась гардеробная комната. Колорита этому помещению добавляет марокканский ковер ручной работы, который был привезен из этой страны в качестве сувенира. Особенностью уникальных рисунков этих ковров является наличие определенной смысловой нагрузки у каждого отдельного графического узора. Эффектное сочетание выразительных и ярких цветов с самобытным орнаментом делают их незаменимыми в оформлении интерьера.





Гардеробная
Хозяйский санузел достаточно просторный, в нем две акцентные стены, размещенные друг напротив друга в отделке из натурального сланца.
Тумба для умывальника на три секции со столешницей из массива дерева отлично сочетается с натуральной текстурой камня. Ванна расположена непосредственно у окна, что также дает возможность отдыхая любоваться видами.

В хозяйском санузле мы использовали следующие бренды :


Сантехника (ванна, унитаз и биде) - производитель VILLEROY & BOCH (Германия)
Настенный душевой смеситель с двойной системой - бренд GROHE (Германия)
Умывальник, смесители для ванной и умывальника - бренд DEVIT (Италия)
Тумба для умывальника на 3 секции со столешницей из массива дерева - фабрика MODULNOVA (Италия)
Настенные светильники - фабрика FLOS _ коллекция Wall System _ артикул F9492057 (Италия)
Дверь межкомнатная - фабрика BARAUSSE (Италия)




Хозяйский санузел
Гостевой санузел расположен на втором этаже. Тумба под умывальник композиционно удачно заполнила нишу между ванной и стеной, здесь также использовалась достаточно крупная по размерам столешница из массива натурального дерева.

В гостевом санузле мы использовали следующие бренды :
Сантехника (унитаз и биде) - производитель VILLEROY & BOCH (Германия)
Настенный душевой смеситель с двойной системой - бренд GROHE (Германия)
Смесители для ванной и умывальника - бренд DEVIT (Италия)
Тумба для умывальника со столешницей из массива дерева - фабрика MODULNOVA (Италия)
Дверь межкомнатная - фабрика BARAUSSE (Италия)





Гостевой санузел
Краков, Польша
Киев, Украина
© 2023 All Right Reserved
Made on
Tilda