COMFORTABLE MINIMALIST house_ 2020

The interior of a private house in the style of minimalism _ 2020

COMFORTABLE MINIMALIST house

The interior of a private house in the style of minimalism _ 2020

Kiev region

House

230 m²

LOCATION
OBJECT
SQUARE

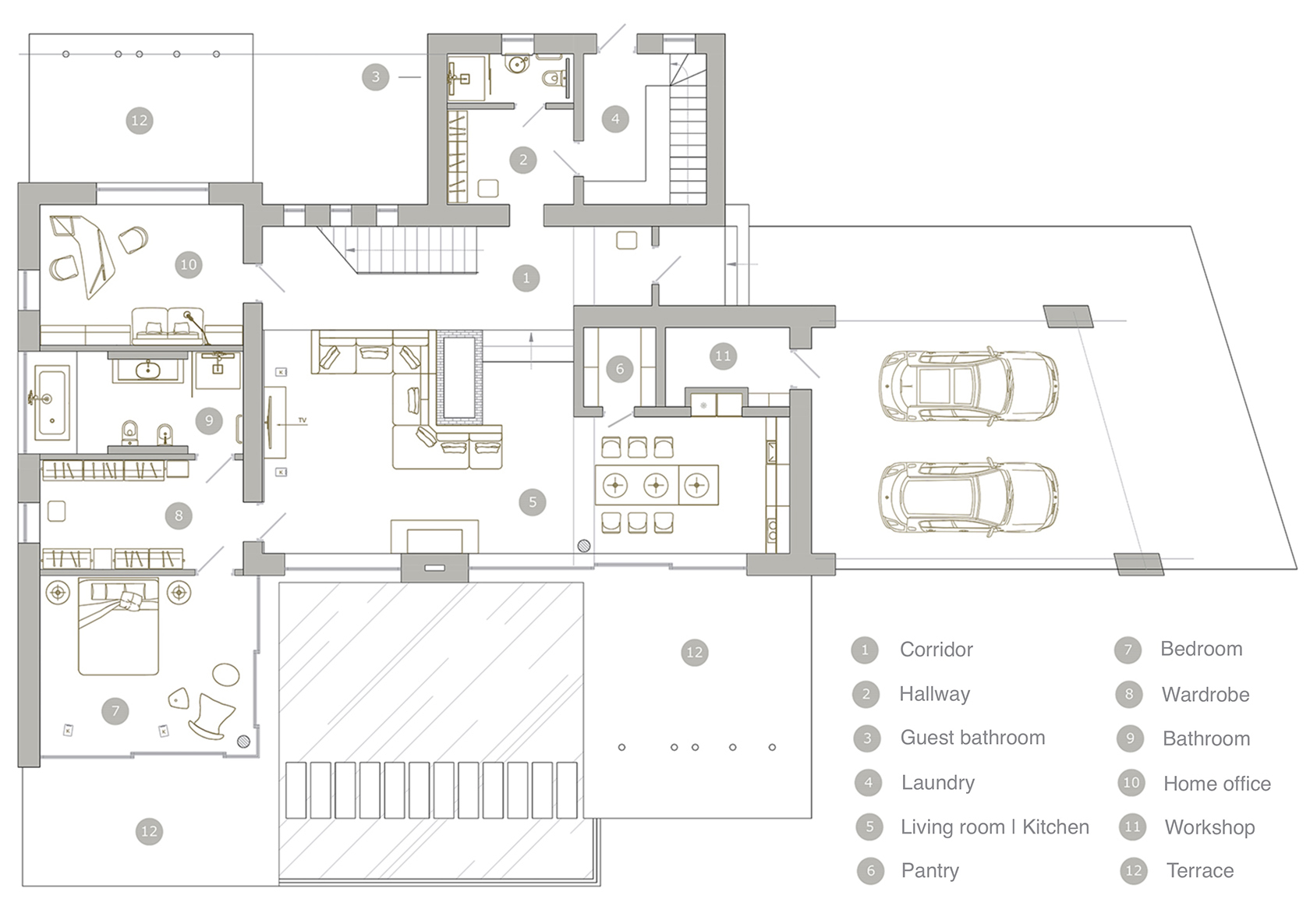
The private house is located near Kyiv.
Picturesque panoramic views of the hilly plains and forests open from the windows of the house.

The interior of the premises is implemented in a minimalist style, which corresponds to the architectural style of the building itself. The interior design is dominated by natural materials and textures.
Spacious open spaces, light colors and a fairly calm color palette of finishing materials create an overall impression of lightness and comfort, and do not distract attention from the beautiful panoramic views from the windows of the house.

The style of minimalism in the interior is characterized by restraint and rigor in design. It is mainly achieved through the use of functional interior items, geometric shapes and a combination of two or three basic colors. It is extremely important when decorating a room to correctly divide the space.

The living room and kitchen area have their own open combined space.
The fireplace zone serves as a kind of central element of the room.

In the kitchen we used the following brands :


In the living room, we used the following brands:

Kitchen furniture - manufacturer DOIMO CUCINE (Italy)
Chairs - manufacturer CATTELAN Italia (Italy)


TV stand - manufacturer SAN GIACOMO (Italy)
Interior doors - manufacturer BARAUSSE (Italy)

Living room and kitchen


In the bedroom, you can also admire the views from the large panoramic windows, sitting comfortably in an armchair. The coffee table with a black marble top was designed individually for this space, more detailed information on designer interior items can be found here in the section



In the bedroom we used the following brands :


Armchair - BOCONCEPT brand _ Imola model (Denmark)
Acoustic system - BANG & OLUFSEN brand _ BeoLab 8002 collection (Denmark)
Bedside tables - brand SANGIACOMO (Italy)
Pendant lamps - DIESEL by FOSCARINI brand _ Cage model (Italy)
Interroom door - brand BARAUSSE (Italy)



Master bedroom


In the home office, we used a contrasting combination of a light bleached oak floor with a rather saturated dark wall body and a bright color accent in the form of a sofa upholstered in nubuck.
Cabinet furniture for this room was developed individually and a technologically complex feature of the wall is the ends of the shelves cut at an acute angle, which makes them very thin and elegant in appearance.
Not only books, but also author's ceramics and souvenirs brought from travels were successfully placed on the shelves.
No less interesting in form and difficult to manufacture is a desk made in tinted oak veneer on a support in the form of a metal leg.
More detailed information regarding this table and other author's interior items can be seen in the section



In the home office, we used the following brands:


Sofa - SABA brand _ Avant model - Apres (Italy)
Lighting (table and wall lamps) - ARTEMIDE brand _ Tolomeo collection (Italy)
Interroom door - brand BARAUSSE (Italy)



Home office

There is a walk-in closet between the master bedroom and the bathroom. The color of this room is added by a Moroccan handmade carpet, which was brought from this country as a souvenir. A feature of the unique designs of these carpets is the presence of a certain semantic load in each individual graphic pattern. A spectacular combination of expressive and bright colors with original ornaments make them indispensable in interior design.




Wardrobe

The master bathroom is quite spacious, it has two accent walls placed opposite each other in a natural slate finish.
The three-section washbasin cabinet with a solid wood top blends perfectly with the natural texture of the stone. The bath is located directly at the window, which also makes it possible to enjoy the views while relaxing.

In the master bathroom we used the following brands:


Plumbing (bath, toilet and bidet) - manufacturer VILLEROY & BOCH (Germany)
Wall mounted shower faucet with double system - brand GROHE (Germany)
Washbasin, bathroom and washbasin faucets - DEVIT brand (Italy)
Washbasin cabinet with 3 sections with solid wood top - manufacturer MODULNOVA (Italy)
Wall lamps - FLOS brand _ Wall System collection _ article F9492057 (Italy)
Interroom door - BARAUSSE factory (Italy)



Master's bathroom

The second bathroom is located on the second floor. The cabinet under the washbasin compositionally successfully filled the niche between the bathroom and the wall; a rather large-sized countertop made of solid natural wood was also used here.

In the bathroom we used the following brands:

Plumbing (toilet and bidet) - manufacturer VILLEROY & BOCH (Germany)
Wall mounted shower faucet with double system - brand GROHE (Germany)
Bath and washbasin faucets - DEVIT brand (Italy)
Washbasin cabinet with solid wood top - MODULNOVA brand (Italy)
Interior door - brand BARAUSSE (Italy)






Second bathroom

Telergram
Messenger
WhatsApp
Viber
PHONE
CONTACT
E-Mail
US

The style of minimalism in the interior is characterized by restraint and rigor in design. It is mainly achieved through the use of functional interior items, geometric shapes and a combination of two or three basic colors. It is extremely important when decorating a room to correctly divide the space.

The living room and kitchen area have their own open combined space. The fireplace zone serves as a kind of central element of the room.

In the kitchen we used the following brands :


In the living room, we used the following brands:

Kitchen furniture - manufacturer DOIMO CUCINE (Italy)
Chairs - manufacturer CATTELAN Italia (Italy)


TV stand - manufacturer SAN GIACOMO (Italy)
Interior doors - manufacturer BARAUSSE (Italy)

Living room and kitchen

In the bedroom, you can also admire the views from the large panoramic windows, sitting comfortably in an armchair. The coffee table with a black marble top was designed individually for this space, more detailed information on designer interior items can be found here in the section



In the bedroom we used the following brands :


Armchair - BOCONCEPT brand _ Imola model (Denmark)
Acoustic system - BANG & OLUFSEN brand _ BeoLab 8002 collection (Denmark)
Bedside tables - brand SANGIACOMO (Italy)
Pendant lamps - DIESEL by FOSCARINI brand _ Cage model (Italy)
Interroom door - brand BARAUSSE (Italy)

Master bedroom


In the home office, we used a contrasting combination of a light bleached oak floor with a rather saturated dark wall body and a bright color accent in the form of a sofa upholstered in nubuck.
Cabinet furniture for this room was developed individually and a technologically complex feature of the wall is the ends of the shelves cut at an acute angle, which makes them very thin and elegant in appearance.
Not only books, but also author's ceramics and souvenirs brought from travels were successfully placed on the shelves.
No less interesting in form and difficult to manufacture is a desk made in tinted oak veneer on a support in the form of a metal leg.
More detailed information regarding this table and other author's interior items can be seen in the section



In the home office, we used the following brands:


Sofa - SABA brand _ Avant model - Apres (Italy)
Lighting (table and wall lamps) - ARTEMIDE brand _ Tolomeo collection (Italy)
Interroom door - brand BARAUSSE (Italy)



Home office

There is a walk-in closet between the master bedroom and the bathroom. The color of this room is added by a Moroccan handmade carpet, which was brought from this country as a souvenir. A feature of the unique designs of these carpets is the presence of a certain semantic load in each individual graphic pattern. A spectacular combination of expressive and bright colors with original ornaments make them indispensable in interior design.




Wardrobe

The master bathroom is quite spacious, it has two accent walls placed opposite each other in a natural slate finish.
The three-section washbasin cabinet with a solid wood top blends perfectly with the natural texture of the stone. The bath is located directly at the window, which also makes it possible to enjoy the views while relaxing.

In the master bathroom we used the following brands:


Plumbing (bath, toilet and bidet) - manufacturer VILLEROY & BOCH (Germany)
Wall mounted shower faucet with double system - brand GROHE (Germany)
Washbasin, bathroom and washbasin faucets - DEVIT brand (Italy)
Washbasin cabinet with 3 sections with solid wood top - manufacturer MODULNOVA (Italy)
Wall lamps - FLOS brand _ Wall System collection _ article F9492057 (Italy)
Interroom door - BARAUSSE factory (Italy)



Master's bathroom

The second bathroom is located on the second floor. The cabinet under the washbasin compositionally successfully filled the niche between the bathroom and the wall; a rather large-sized countertop made of solid natural wood was also used here.

In the bathroom we used the following brands:

Plumbing (toilet and bidet) - manufacturer VILLEROY & BOCH (Germany)
Wall mounted shower faucet with double system - brand GROHE (Germany)
Bath and washbasin faucets - DEVIT brand (Italy)
Washbasin cabinet with solid wood top - MODULNOVA brand (Italy)
Interior door - brand BARAUSSE (Italy)






Second bathroom

Telergram
Messenger
WhatsApp
Viber
PHONE
CONTACT
E-Mail
US
© 2023 All Right Reserved
Made on
Tilda