COMFORTABLE MINIMALIST house_ 2020

Minimalistyczne wnętrze prywatnego domu _ 2020

COMFORTABLE MINIMALIST house

Minimalistyczne wnętrze prywatnego domu _ 2020

Kiev region

House

230 m²

LOCATION
OBJECT
SQUARE

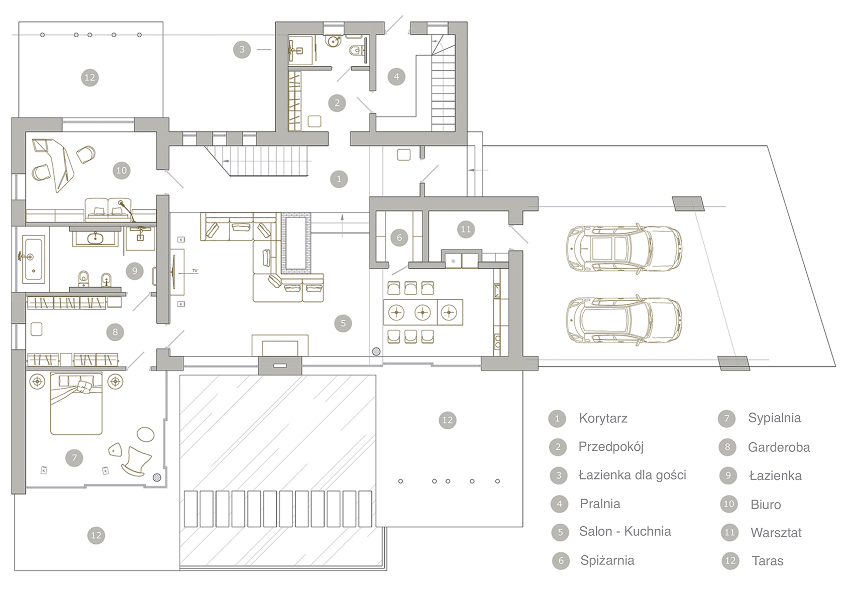
Prywatny dom znajduje się w pobliżu Kijowa. Z okien domu otwierają się malownicze panoramiczne widoki na przestronne równiny i lasy.

Wnętrze lokalu zostało zrealizowane w stylu minimalistycznym, co odpowiada stylowi architektonicznemu samego budynku. W wystroju wnętrz dominują naturalne materiały i faktury. Przestronne otwarte przestrzenie, jasna i dość spokojna kolorystyka materiałów wykończeniowych stwarzają ogólne wrażenie lekkości i komfortu, nie odwracając uwagi od pięknych panoramicznych widoków z okien domu.

Styl minimalizmu we wnętrzu charakteryzuje się powściągliwością i rygorem w projektowaniu. Osiąga się to głównie poprzez zastosowanie funkcjonalnych elementów wyposażenia wnętrz, geometrycznych kształtów oraz zestawienia dwóch lub trzech podstawowych kolorów. Podczas urządzania pokoju niezwykle ważne jest prawidłowe podzielenie przestrzeni.

Salon i kuchnia mają własną otwartą przestrzeń połączoną. Strefa kominkowa służy jako swego rodzaju centralny element pomieszczenia.

W kuchni wykorzystaliśmy następujące marki:


W salonie wykorzystaliśmy następujące marki:

Meble kuchenne - producent DOIMO CUCINE (Italy)
Krzesła - producent CATTELAN Italia (Italy)


Szafka pod TV - producent SAN GIACOMO (Italy)
Drzwi do pokoju - producent BARAUSSE (Italy)

Pokój dzienny i kuchnia


W sypialni również można podziwiać widoki z dużych panoramicznych okien, siedząc wygodnie w fotelu. Stolik kawowy z blatem z czarnego marmuru został zaprojektowany indywidualnie do tej przestrzeni, więcej informacji o designerskich elementach wyposażenia wnętrz znajdziesz w dziale



W sypialni wykorzystaliśmy następujące marki:


Fotel - BOCONCEPT brand _ Imola model (Denmark)
System akustyczny - BANG & OLUFSEN brand _ BeoLab 8002 collection (Denmark)
«Stoliki nocne - brand SANGIACOMO (Italy)
Lampy wiszące - DIESEL by FOSCARINI brand _ Cage model (Italy)
Drzwi do pokoju - brand BARAUSSE (Italy)



Główna sypialnia


W domowym biurze zastosowaliśmy kontrastowe połączenie jasnej bielonej dębowej podłogi z dość nasyconym ciemnym korpusem ścianek bocznych regału oraz jasnym akcentem kolorystycznym w postaci sofy obitej nubukiem. Meble gabinetowe do tego pomieszczenia zostały opracowane indywidualnie, a skomplikowanym technologicznie elementem regału są końce półek ścięte pod ostrym kątem, co czyni je bardzo cienkimi i eleganckimi w wyglądzie. Na półkach z powodzeniem umieszczano nie tylko książki, ale także ceramika autorska i pamiątki przywiezione z podróży.

Nie mniej ciekawe w formie i trudne w wykonaniu jest biurko wykonane w forniru dębowemu na podporze w postaci metalowej nogi. Bardziej szczegółowe informacje dotyczące tego stołu i innych autorskich elementów wyposażenia wnętrz można zobaczyć w dziale



W domowym biurze wykorzystaliśmy następujące marki:


Kanapa - SABA brand _ Avant model - Apres (Italy)
Oświetlenie (lampy stołowe i ścienne) - ARTEMIDE brand _ Tolomeo collection (Italy)
Drzwi do pokoju - brand BARAUSSE (Italy)



Home office

Pomiędzy główną sypialnią i łazienką znajduje się garderoba. Koloru temu pomieszczeniu dodaje ręcznie robiony marokański dywan, który został przywieziony z tego kraju na pamiątkę. Cechą unikalnych projektów tych dywanów jest obecność określonego ładunku semantycznego w każdym indywidualnym wzorze graficznym. Efektowne połączenie wyrazistej i jasnej kolorystyki z oryginalnym wzorem czynią je niezastąpionymi w aranżacji wnętrz.




Garderoba

Główna łazienka jest dość przestronna, ma dwie akcentujące ściany umieszczone naprzeciw siebie w naturalnym łupku.
Trzydrzwiowa szafka podumywalkowa z drewnianym blatem doskonale komponuje się z naturalną fakturą kamienia. Wanna znajduje się bezpośrednio przy oknie, co również daje możliwość cieszenia się widokami podczas relaksu.

W głównej łazience zastosowaliśmy następujące marki:


Wyposażenie sanitarne (wanna, toaleta i bidet) - producent VILLEROY & BOCH (Germany)
Ścienna bateria prysznicowa z podwójnym systemem - brand GROHE (Germany)
Baterie wannowe, umywalkowe i bidetowe - DEVIT brand (Italy)
Szafka podumywalkowa z 3 sekcjami z drewnianym blatem - producent MODULNOVA (Italy)
Kinkiety - FLOS brand _ Wall System collection _ article F9492057 (Italy)
Drzwi do pokoju - BARAUSSE factory (Italy)



Główna łazienka

Druga łazienka znajduje się na drugim piętrze. Szafka pod umywalkę kompozycyjnie z powodzeniem wypełniła niszę między łazienką i ścianą; zastosowano tu dość dużych rozmiarów, blat wykonany z naturalnego drewna.

W łazience zastosowaliśmy następujące marki:

Wyposażenie sanitarne (toaleta i bidet) - producent VILLEROY & BOCH (Germany)
Ścienna bateria prysznicowa z podwójnym systemem - brand GROHE (Germany)
Baterie wannowe i umywalkowe - DEVIT brand (Italy)
Szafka pod umywalkę z blatem z naturalnego drewna - MODULNOVA brand (Italy)
Drzwi do pokoju - brand BARAUSSE (Italy)






Łazienka druga

Telergram
Messenger
WhatsApp
Viber
PHONE
CONTACT
E-Mail
US

Styl minimalizmu we wnętrzu charakteryzuje się powściągliwością i rygorem w projektowaniu. Osiąga się to głównie poprzez zastosowanie funkcjonalnych elementów wyposażenia wnętrz, geometrycznych kształtów oraz zestawienia dwóch lub trzech podstawowych kolorów. Podczas urządzania pokoju niezwykle ważne jest prawidłowe podzielenie przestrzeni.

Salon i kuchnia mają własną otwartą przestrzeń połączoną. Strefa kominkowa służy jako swego rodzaju centralny element pomieszczenia.

W kuchni wykorzystaliśmy następujące marki:


W salonie zastosowaliśmy następujące marki:

Meble kuchenne - producent DOIMO CUCINE (Italy)
Krzesła - producent CATTELAN Italia (Italy)


Szafka pod TV - producent SAN GIACOMO (Italy)
Drzwi do pokoju - producent BARAUSSE (Italy)

Pokój dzienny i kuchnia

W sypialni również można podziwiać widoki z dużych panoramicznych okien, siedząc wygodnie w fotelu. Stolik kawowy z blatem z czarnego marmuru został zaprojektowany indywidualnie do tej przestrzeni, więcej informacji o designerskich elementach wyposażenia wnętrz znajdziesz w dziale :



W sypialni wykorzystaliśmy następujące marki:


Fotel - BOCONCEPT brand _ Imola model (Denmark)
System akustyczny - BANG & OLUFSEN brand _ BeoLab 8002 collection (Denmark)
Stoliki nocne - brand SANGIACOMO (Italy)
Lampy wiszące - DIESEL by FOSCARINI brand _ Cage model (Italy)
Drzwi do pokoju - brand BARAUSSE (Italy)

Główna sypialnia


W domowym biurze zastosowaliśmy kontrastowe połączenie jasnej bielonej dębowej podłogi z dość nasyconym ciemnym korpusem ścianek bocznych regału oraz jasnym akcentem kolorystycznym w postaci sofy obitej nubukiem. Meble gabinetowe do tego pomieszczenia zostały opracowane indywidualnie, a skomplikowanym technologicznie elementem regału są końce półek ścięte pod ostrym kątem, co czyni je bardzo cienkimi i eleganckimi w wyglądzie. Na półkach z powodzeniem umieszczano nie tylko książki, ale także ceramika autorska i pamiątki przywiezione z podróży.

Nie mniej ciekawe w formie i trudne w wykonaniu jest biurko wykonane w forniru dębowemu na podporze w postaci metalowej nogi. Bardziej szczegółowe informacje dotyczące tego stołu i innych autorskich elementów wyposażenia wnętrz można zobaczyć w dziale :





W domowym biurze wykorzystaliśmy następujące marki:


Kanapa - SABA brand _ Avant model - Apres (Italy)
Oświetlenie (lampy stołowe i ścienne) - ARTEMIDE brand _ Tolomeo collection (Italy)
Drzwi do pokoju - brand BARAUSSE (Italy)



Biuro domowe

Pomiędzy główną sypialnią i łazienką znajduje się garderoba. Koloru temu pomieszczeniu dodaje ręcznie robiony marokański dywan, który został przywieziony z tego kraju na pamiątkę.
Cechą unikalnych projektów tych dywanów jest obecność określonego ładunku semantycznego w każdym indywidualnym wzorze graficznym.

Efektowne połączenie wyrazistej i jasnej kolorystyki z oryginalnym wzorem czynią je niezastąpionymi w aranżacji wnętrz.




Garderoba

Główna łazienka jest dość przestronna, ma dwie akcentujące ściany umieszczone naprzeciw siebie w naturalnym łupku.

Trzydrzwiowa szafka podumywalkowa z drewnianym blatem doskonale komponuje się z naturalną fakturą kamienia. Wanna znajduje się bezpośrednio przy oknie, co również daje możliwość cieszenia się widokami podczas relaksu.

W głównej łazience zastosowaliśmy następujące marki:


Wyposażenie sanitarne (wanna, toaleta i bidet) - producent VILLEROY & BOCH (Germany)
Ścienna bateria prysznicowa z podwójnym systemem - brand GROHE (Germany)
Baterie wannowe, umywalkowe i bidetowe - DEVIT brand (Italy)
Szafka podumywalkowa z 3 sekcjami z drewnianym blatem - producent MODULNOVA (Italy)
Kinkiety - FLOS brand _ Wall System collection _ article F9492057 (Italy)
Drzwi do pokoju - BARAUSSE factory (Italy)



Główna łazienka

Druga łazienka znajduje się na drugim piętrze. Szafka pod umywalkę kompozycyjnie z powodzeniem wypełniła niszę między łazienką i ścianą; zastosowano tu dość dużych rozmiarów, blat wykonany z naturalnego drewna.

W łazience zastosowaliśmy następujące marki:

Wyposażenie sanitarne (toaleta i bidet) - producent VILLEROY & BOCH (Germany)
Ścienna bateria prysznicowa z podwójnym systemem - brand GROHE (Germany)
Baterie wannowe i umywalkowe - DEVIT brand (Italy)
Szafka pod umywalkę z blatem z naturalnego drewna - MODULNOVA brand (Italy)
Drzwi do pokoju - brand BARAUSSE (Italy)






Łazienka druga

Telergram
Messenger
WhatsApp
Viber
PHONE
CONTACT
E-Mail
US
© 2023 All Right Reserved
Made on
Tilda