Смарт-квартира в стиле LOFT
Однокімнатна квартира-студія у Києві _ 2018
Смарт-квартира в стиле LOFT
Однокімнатна квартира-студія у Києві _ 2018
г. Киев
Смарт-квартира в ЖК "Лыбидь"
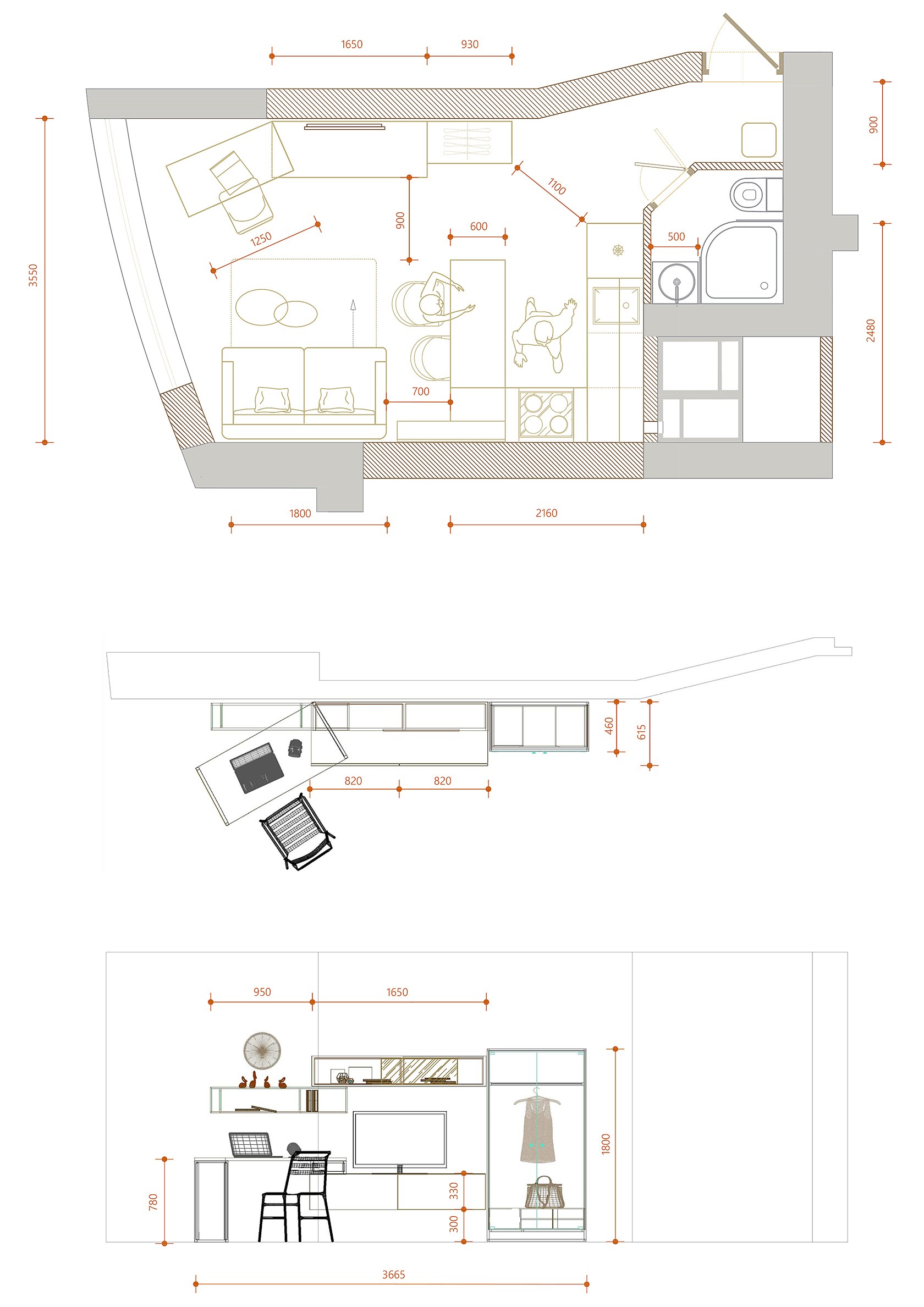
23,0 м²
ЛОКАЦИЯ
ОБЪЕКТ
ПЛОЩАДЬ

Эта малогабаритная квартира-студия планировалась заказчиком для сдачи в аренду. В этом случае мы отдали предпочтение стилю Loft, оставив при этом без отделки существующие бетонное перекрытие и несущие стены. В работе с такими объектами особенно важно не выходить за рамки бюджета, но при этом создать стильный интерьер, учитывая все принципы эргономики.

Для создания интерьера в стиле Loft идеально подойдет большое помещение без перегородок и типичными для лофта бетонными или кирпичными стенами. В оформлении пространства должно присутствовать сочетание современных и старых (умышленно состаренных) материалов, текстур и поверхностей.
Умело соединив отличительные элементы стиля, даже в маленькой квартире с невысокими потолками можно достичь желаемого эффекта и привнести урбанистические нотки в оформлении смарт - квартиры.
Интересный декоративный акцент в этом проекте привносит гипсовое панно на бетонной стене в виде барельефа.
Санузел, стилистикой своего оформления, созвучен с общим концептом интерьера квартиры. Подвесная секция для умывальника с подсветкой внизу создает впечатление легкости, несмотря на очень маленькие размеры помещения, санузел не кажется слишком заполненным.
Краков, Польша
Киев, Украина
Для создания интерьера в стиле Loft идеально подойдет большое помещение без перегородок и типичными для лофта бетонными или кирпичными стенами. В оформлении пространства должно присутствовать сочетание современных и старых (умышленно состаренных) материалов, текстур и поверхностей.
Умело соединив отличительные элементы стиля, даже в маленькой квартире с невысокими потолками можно достичь желаемого эффекта и привнести урбанистические нотки в оформлении смарт - квартиры.
Интересный декоративный акцент в этом проекте привносит гипсовое панно на бетонной стене в виде барельефа.
Санузел, стилистикой своего оформления, созвучен с общим концептом интерьера квартиры. Подвесная секция для умывальника с подсветкой внизу создает впечатление легкости, несмотря на очень маленькие размеры помещения, санузел не кажется слишком заполненным.
Краков, Польша
Киев, Украина
© 2023 All Right Reserved
Made on
Tilda